Nieuwbouw woning te Reduzum
Datum : 23-11-2016
Opdrachtgever : fam. Bouwstra
Status : In uitvoering
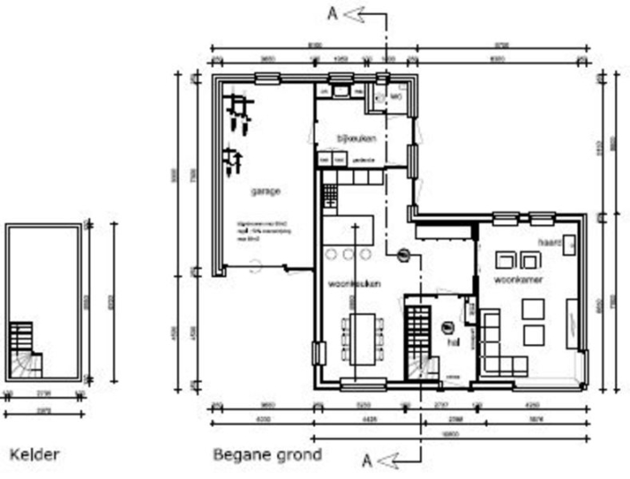
Bouwbedrijf Klaversma te Mantgum is aan de Master- Gorterstrjitte 23-25 te Reduzum , onlangs opgestart met de nieuwbouw van een ruime duurzame vrijstaande woning met 4 bouwlagen. ( voormalige huurwoningen zijn gsloopt ) De 1e bouwlaag is een prefab kelder over de breedte van de woning. De woning is voorzien van een zeer ruime woonkeuken welke is afgesloten dmv en-suitedeuren van de woonkamer. Achter de woonkeuken een grote bijkeuken 3*3. m2 en een garage 4*8 m2. Op de verdieping ( overal 2.60m1 hoogte ) een overloop met inbouwkasten, de luxe badkamer, een master bedroom met inloopkast 3*6.5 en 2 slaapkamers 3*3.5. De goed beloopbare en ruime zolder van 70 m2 is bereikbaar middels een 2e vaste trap. ( totaal inhoud 700 m3 !)
Fundering met trillingsvrije avegaarpalen ( boren en in het werk gestort ). Gestorte funderingsbalken. Hier wordt de prefab kelder aan opgehangen. Prefab betonnen bgg en verdiepingsvloer. Binnenwanden BIA beton lijmblokjes. Rondom baksteen metselwerk kleur antraciet. Zoldervloer en kapconstructie prefab HSB. Dakpannen Actua matzwart vergaasd met aan zuidzijde zonnepanelen verwerkt tussen de pannen. Dakranden- boeien – goten en kozijnen alles onderhoudsarm kunststof.
BBT- Agri Bouw heeft het ontwerp en vergunningstraject georganiseerd met alle bijbehorende technische berekeningen en rapporten. Een bestek en aanbesteding was het vervolg.
Foto’s
Nieuwbouw woning te Reduzum
Datum : 23-11-2016
Opdrachtgever : fam. Bouwstra
Status : In uitvoering
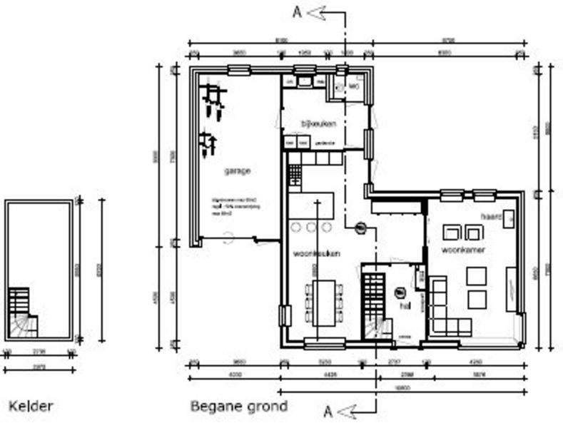
Bouwbedrijf Klaversma te Mantgum is aan de Master- Gorterstrjitte 23-25 te Reduzum , onlangs opgestart met de nieuwbouw van een ruime duurzame vrijstaande woning met 4 bouwlagen. ( voormalige huurwoningen zijn gsloopt ) De 1e bouwlaag is een prefab kelder over de breedte van de woning. De woning is voorzien van een zeer ruime woonkeuken welke is afgesloten dmv en-suitedeuren van de woonkamer. Achter de woonkeuken een grote bijkeuken 3*3. m2 en een garage 4*8 m2. Op de verdieping ( overal 2.60m1 hoogte ) een overloop met inbouwkasten, de luxe badkamer, een master bedroom met inloopkast 3*6.5 en 2 slaapkamers 3*3.5. De goed beloopbare en ruime zolder van 70 m2 is bereikbaar middels een 2e vaste trap. ( totaal inhoud 700 m3 !)
Fundering met trillingsvrije avegaarpalen ( boren en in het werk gestort ). Gestorte funderingsbalken. Hier wordt de prefab kelder aan opgehangen. Prefab betonnen bgg en verdiepingsvloer. Binnenwanden BIA beton lijmblokjes. Rondom baksteen metselwerk kleur antraciet. Zoldervloer en kapconstructie prefab HSB. Dakpannen Actua matzwart vergaasd met aan zuidzijde zonnepanelen verwerkt tussen de pannen. Dakranden- boeien – goten en kozijnen alles onderhoudsarm kunststof.
BBT- Agri Bouw heeft het ontwerp en vergunningstraject georganiseerd met alle bijbehorende technische berekeningen en rapporten. Een bestek en aanbesteding was het vervolg.








